Tác giả :
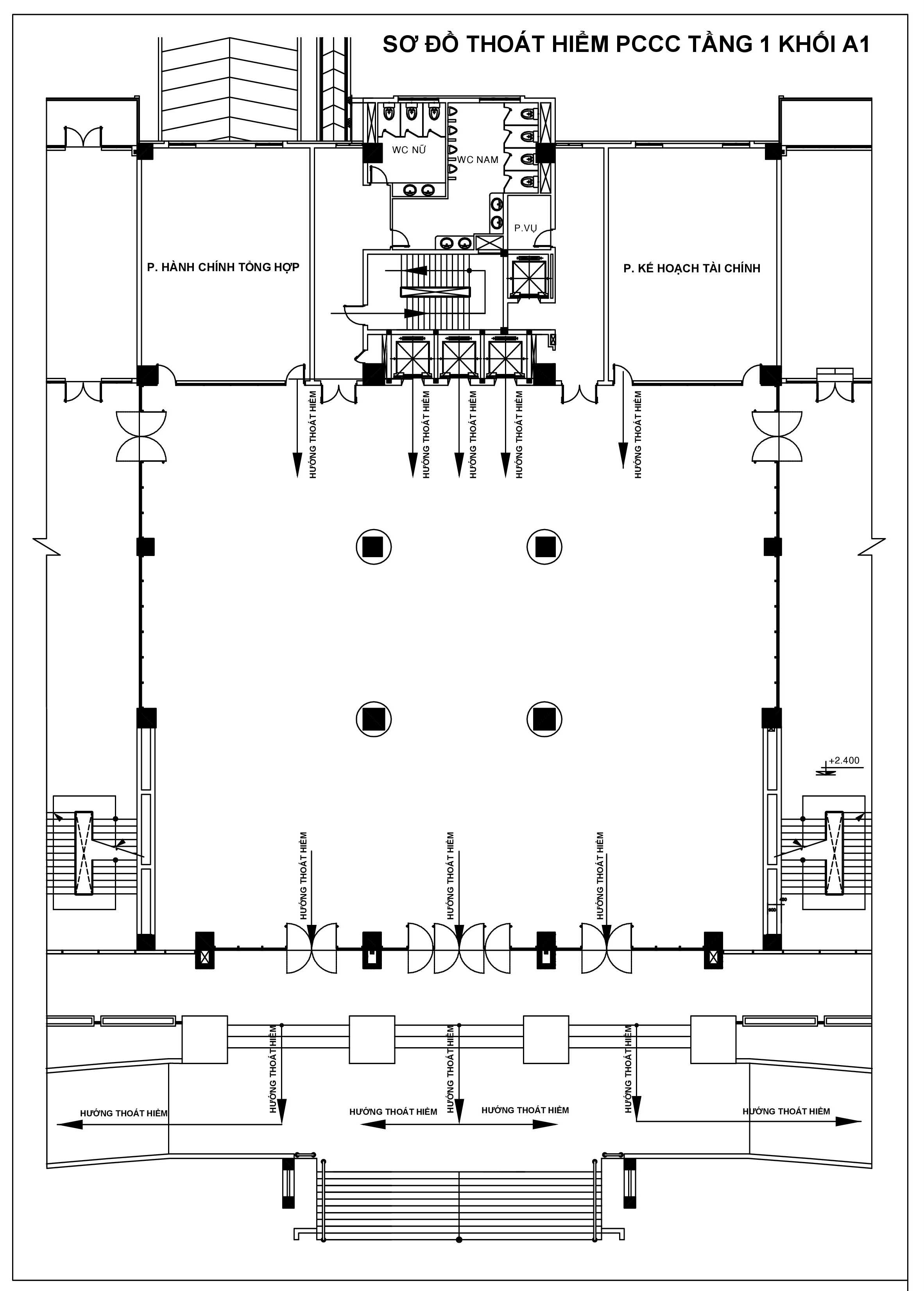
Sơ đồ thoát hiểm tầng 1
Tầng 1 - Khối A1


Tầng 1 - Khối A2-A3


Tầng 1 - Khối A4-A5


Góp ý
Họ và tên: *  
Email: *  
Tiêu đề: *  
Mã xác nhận:
RadEditor - HTML WYSIWYG Editor. MS Word-like content editing experience thanks to a rich set of formatting tools, dropdowns, dialogs, system modules and built-in spell-check.
RadEditor's components - toolbar, content area, modes and modules
   
Toolbar's wrapper  
Content area wrapper
RadEditor's bottom area: Design, Html and Preview modes, Statistics module and resize handle.
It contains RadEditor's Modes/views (HTML, Design and Preview), Statistics and Resizer
Editor Mode buttonsStatistics moduleEditor resizer
 
 
RadEditor's Modules - special tools used to provide extra information such as Tag Inspector, Real Time HTML Viewer, Tag Properties and other.
   
 *

Trường Đại Học Công nghệ Kỹ Thuật Thành phố Hồ Chí Minh

Phòng Quản trị Cơ sở Vật chất
Đ/c: Phòng A1-706 & A1-707, Tầng 7 Tòa nhà trung tâm, Trường Đại học Công nghệ Kỹ thuật TP. HCM

Số 1 Võ Văn Ngân, phường Thủ Đức, Thành phố Hồ Chí Minh
ĐT: (08) 3722 3502 or (08) 37221223 - 8200

Truy cập tháng: 3,705

Tổng truy cập:37,759